BA (Hons) Architecture| Second Year | Project 3 (Pair & Group Work) | Impact Hub: Transitory Spaces
The brief for this project detailed pairs working collaboratively to design one of four key working spaces associated with Impact Hub: Birmingham to be proposed as a temporary unit whilst the construction of a more permanent home is to be carried out. At a later stage of the project, pairs working on designing alternative spaces for Impact hub would come together to form a collective and theoretical architectural practice. These collectives or ‘practices’ then designed conceptual ways in which these buildings would interact with one another and make the most of existing or creating new circulation routes within Digbeth, Birmingham- a key space for creatives.
PAIR WORK
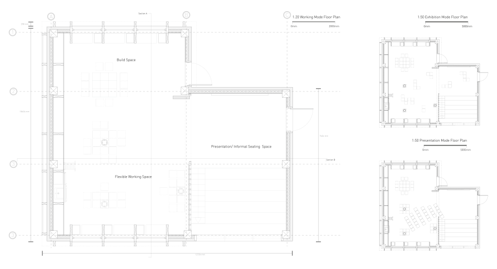
As part of the pair work, Interblock was designed. This was a ‘workshop’ space for Impact Hub: Birmingham and was a collaborative, flexible work space catering for both smaller and larger working groups. The furniture and floor plan was optimised for multiple uses such as casual desk working, exhibition and presentational modes; making the most of bespoke cubes that could be used as chairs or stacked to form desks.












GROUP WORK | ABSTRACT ARCHITECTS
When forming our collective, we formed Abstract Architects; a practice with an ethos of playful architecture that interacted with the urban environment in intriguing ways. Our buildings were placed on the roofs of the Custard Factory buildings, making the most of existing ancillary spaces and vertical circulation routes. New pedestrian circulation routes were designed in the form of bridges and slides that provided an alternative means of accessing the existing courtyard.



